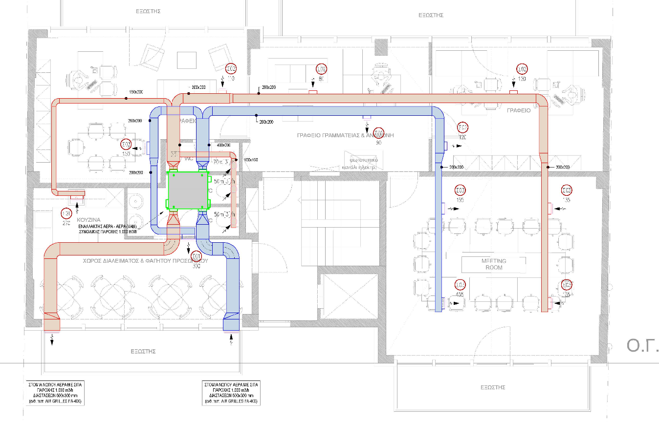
Description:

Project Title: New office building for “ESA” security services
Date: 2018
Design Type: Detailed E/M Design
Location: Chalandri – Athens
Description: Detailed E/M design for the completion of the new office building for “ESA” security services.


    PATH Engineering Consultants was founded by the merge of the personal companies of Thanos Spiliotopoulos, Mechanical Engineer, MSc and Panos Tampakopoulos, Mechanical Engineer, MEng. Both partners have a long experience in the building/industrial mechanical & electrical design, as well as in the marine HVAC field by participating in the design, installation and commissioning of several significant projects. By joining their expertise under PATH Engineering Consultants together with the highly skilled design team they can provide innovative design solutions and consultancy for any marine and building application.

    Head Office

    Address: Angelou Sikelianou Str. 4, Neo Psychiko, 154 51, Athens, Greece
    Phone: (+30) 210 677 0101
    Email: [email protected]
    Web: https://pathengineering.gr

    Branch Office

    Address: 28 Makarios III Avenue, Office 117, City Plaza, 1065, Nicosia, Cyprus
    Phone: (+357) 99 237 816
    Email: [email protected]
    Web: https://pathengineering.gr
    © Copyright 2018 - pathengineering.gr